2-ZIMMER WOHNUNG MIT BALKON

SCHWABING

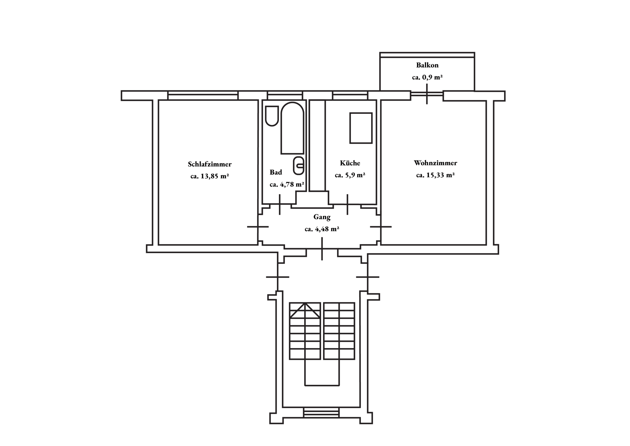
ID 27 | 2 Zimmer | ca. 45,24 m² | 550.000,00 €

Beschreibung

Diese gepflegte Wohnung im 3. Stock überzeugt durch ihre Helligkeit und durchdachte Raumaufteilung. Sie verfügt über zwei Zimmer, ein Badezimmer mit Badewanne sowie einen Balkon für entspannte Stunden im Freien. Zusätzlich stehen ein Keller- und ein Dachbodenabteil zur Verfügung und bieten praktischen Stauraum.

Lage

Schwabing zählt zu den traditionsreichsten und zugleich begehrtesten Wohnlagen Münchens.Die Kombination aus einer ruhigen, gepflegten Umgebung und der unmittelbaren Nähe zu urbanem Leben macht diesen Stan- dort besonders attraktiv.
In wenigen Gehminuten erreichen Sie den Hohenzollernplatz, den Kurfürstenplatz sowie die renommierte Hohenzollernstraße mit ihrem vielfältigen Angebot an Restaurants, Cafés und individuellen Geschäften.
Einrichtungen des täglichen Bedarfs, Banken, Apotheken und ausgewählte Fachgeschäfte befinden sich ebenfalls in unmittel- barer Umgebung.
Dank der exzellenten Anbindung an den öffentlichen Nahverkehr – mit der U-Bahn-Station Hohenzollernplatz (U2 und U8), mehreren Straßenbahnlinien sowie Busverbindungen – sind Sie optimal mit der gesamten Stadt verbunden.
Für Erholung und Freizeitgestaltung stehen der nur wenige Schritte entfernte Luitpoldpark sowie der berühmte Englische Garten zur Verfügung. Beide Grünanlagen bieten Raum für sportliche Aktivitäten ebenso wie für entspannte Stunden im Grünen.
Diese Lage vereint repräsentatives Wohnen mit höchster Lebensqualität – und zählt damit zu den exklusivsten Adressen Münchens.